Paralimni, Paralimni - Deyneia Municipality, Famagusta District, Cyprus
Προς πώληση
€145,000
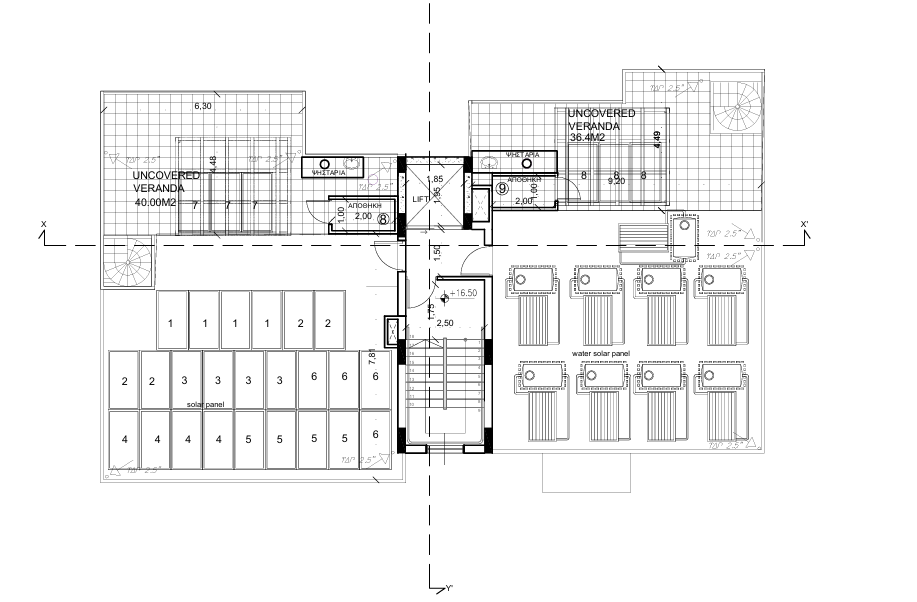
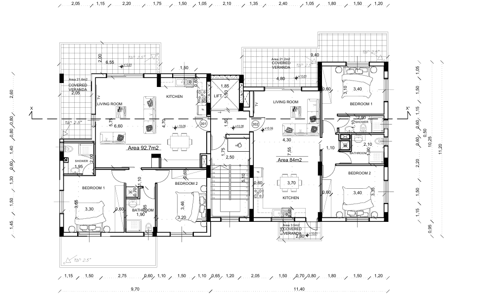
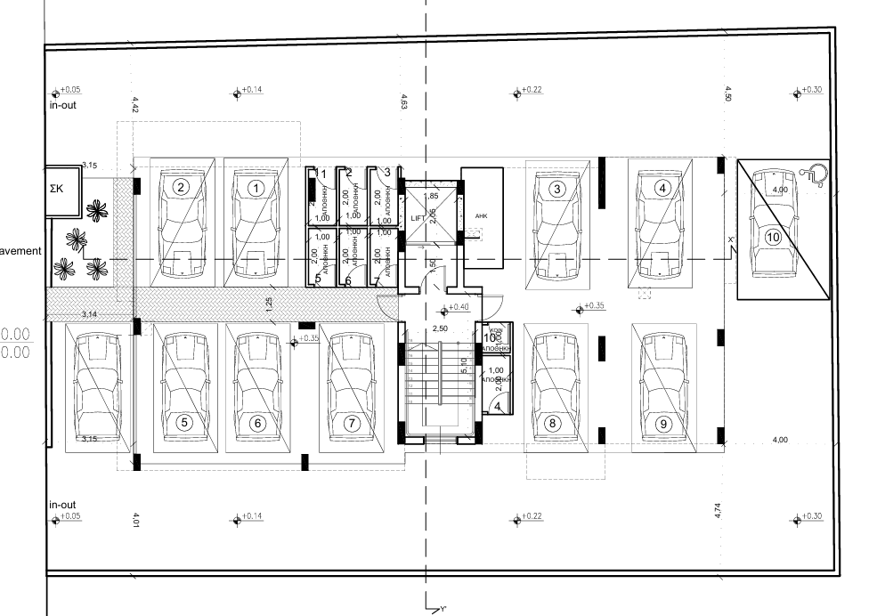
Πωλείται υπό ανέγερση διαμέρισμα ενός υπνοδωματίου στο Παραλίμνι – επαρχία Αμμοχώστου. Αποτελείται από 50,5 τ.μ. καλυμμένο εσωτερικό χώρο και 13 τ.μ. καλυμμένη βεράντα, στον δεύτερο όροφο της πολυκατοικίας με 9 διαμερίσματα στο σύνολο. Διαθέτει ένα χώρο υγιεινής, πρόνοια για σύστημα κλιματισμού, πρόνοια για θυροτηλεόραση, πρόνοια για αντικουνουπικό πλέγμα και περσιάνες, θερμομονωτικά παράθυρα και διπλά γυαλιά, πιεστικό σύστημα νερού, καλυμμένο χώρο στάθμευσης και αποθήκη. Βρίσκεται σε καλή περιοχή κοντά σε διάφορες ανέσεις. Τιμή πώλησης 145,000 ευρώ πλέον ΦΠΑ.
Owning a home is a keystone of wealth… both financial affluence and emotional security.
Suze OrmanTo provide the best experiences, we and our partners use technologies like cookies to store and/or access device information. Consenting to these technologies will allow us and our partners to process personal data such as browsing behavior or unique IDs on this site and show (non-) personalized ads. Not consenting or withdrawing consent, may adversely affect certain features and functions.
Click below to consent to the above or make granular choices. Your choices will be applied to this site only. You can change your settings at any time, including withdrawing your consent, by using the toggles on the Cookie Policy, or by clicking on the manage consent button at the bottom of the screen.