Polis, Polis Chrysochous, Paphos District, Cyprus, 8831, Cyprus
Προς πώληση
€759,000
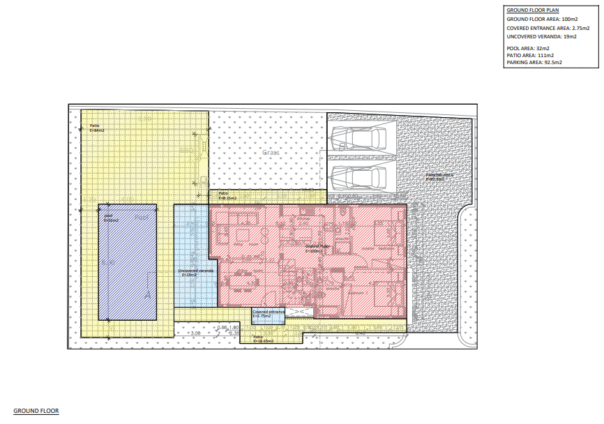
Πωλείται υπό ανέγερση έπαυλη τεσσάρων υπνοδωματίων με πισίνα στο Πωμό στην επαρχία Πάφου. Αποτελείται από 170 τ.μ. καλυμμένο εσωτερικό χώρο, 3 τ.μ. καλυμμένη βεράντα και 52 τ.μ. ακάλυπτη βεράντα κτισμένη σε 620 τ.μ. οικόπεδο. Διαθέτει 5 χώρους υγιεινής, ensuite και στα 4 υπνοδωμάτια, 2 χώρους στάθμευσης side by side, πισίνα 4 x 8 μέτρα και κήπο. Η έπαυλη διαθέτει πρόνοιες κλιματισμού. Τοποθετείται μόλις 100 μέτρα από τη θάλασσα και είναι ιδανικό για μόνιμη αλλά και για εξοχική κατοικία. Τιμή πώλησης 759,000 ευρώ πλέον Φ.Π.Α.
Owning a home is a keystone of wealth… both financial affluence and emotional security.
Suze OrmanTo provide the best experiences, we and our partners use technologies like cookies to store and/or access device information. Consenting to these technologies will allow us and our partners to process personal data such as browsing behavior or unique IDs on this site and show (non-) personalized ads. Not consenting or withdrawing consent, may adversely affect certain features and functions.
Click below to consent to the above or make granular choices. Your choices will be applied to this site only. You can change your settings at any time, including withdrawing your consent, by using the toggles on the Cookie Policy, or by clicking on the manage consent button at the bottom of the screen.