Kato Polemidia, Δήμος Κάτω Πολεμιδίων, Limassol District, Cyprus, 4156, Cyprus
Προς πώληση
€215,000
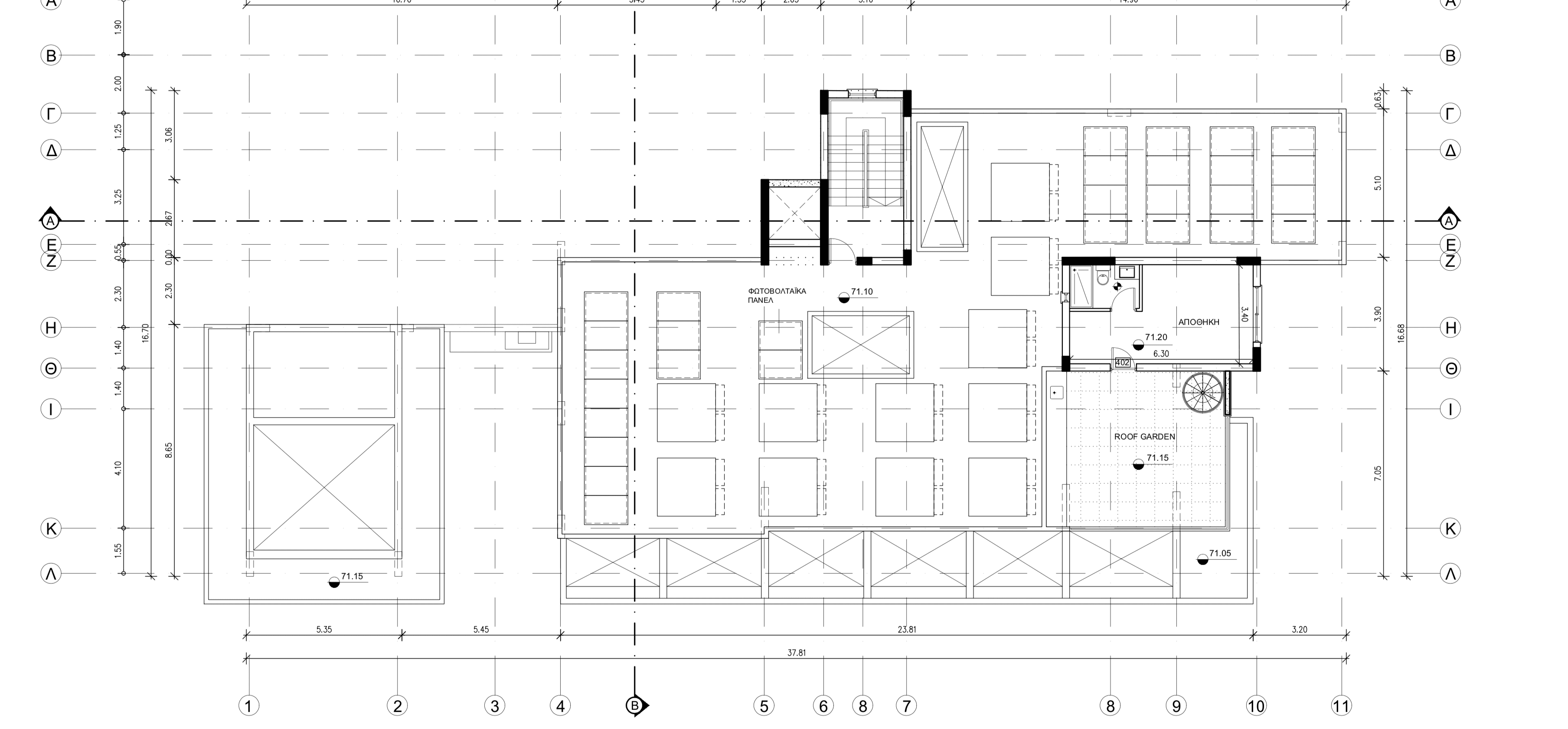
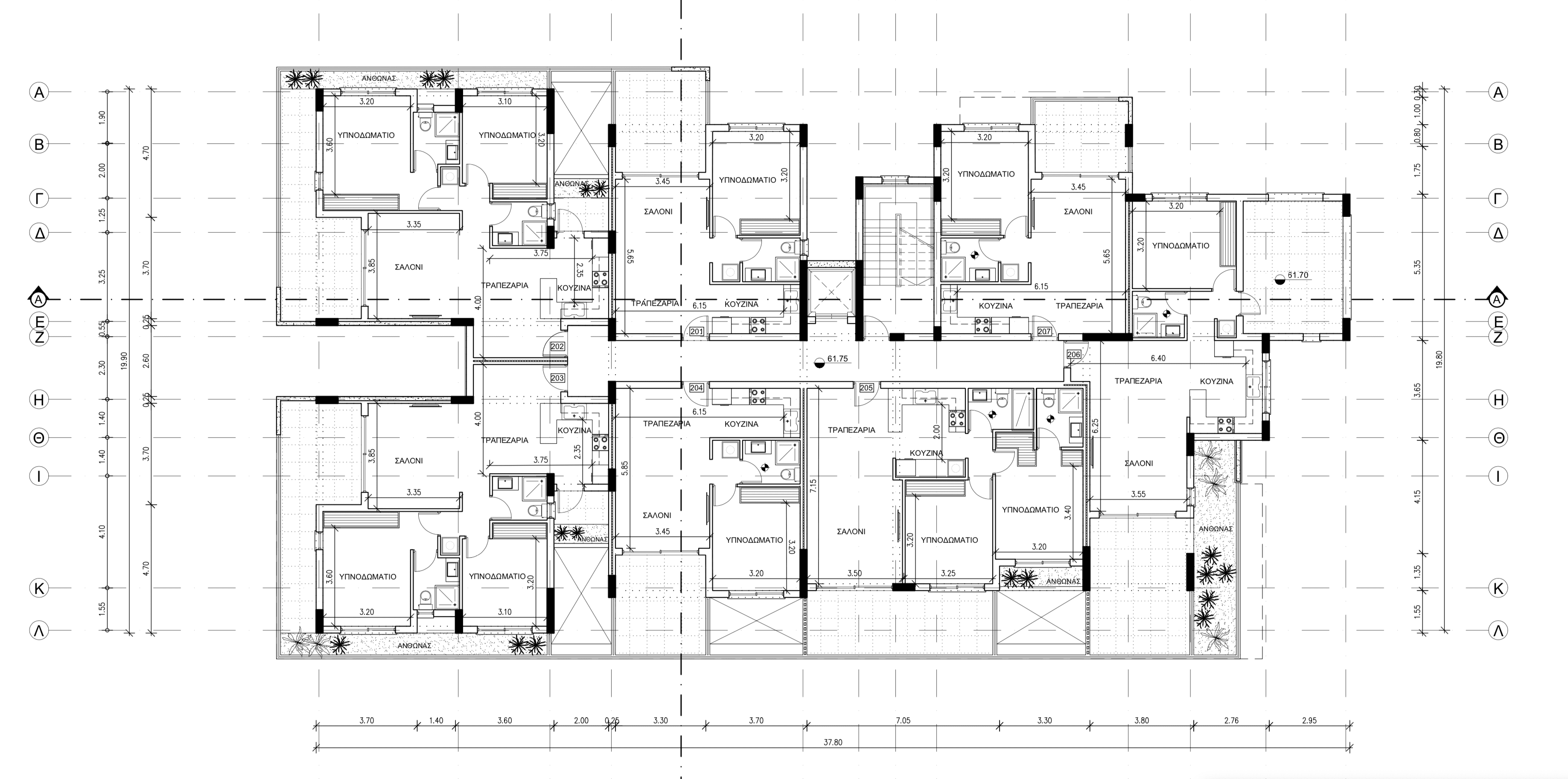
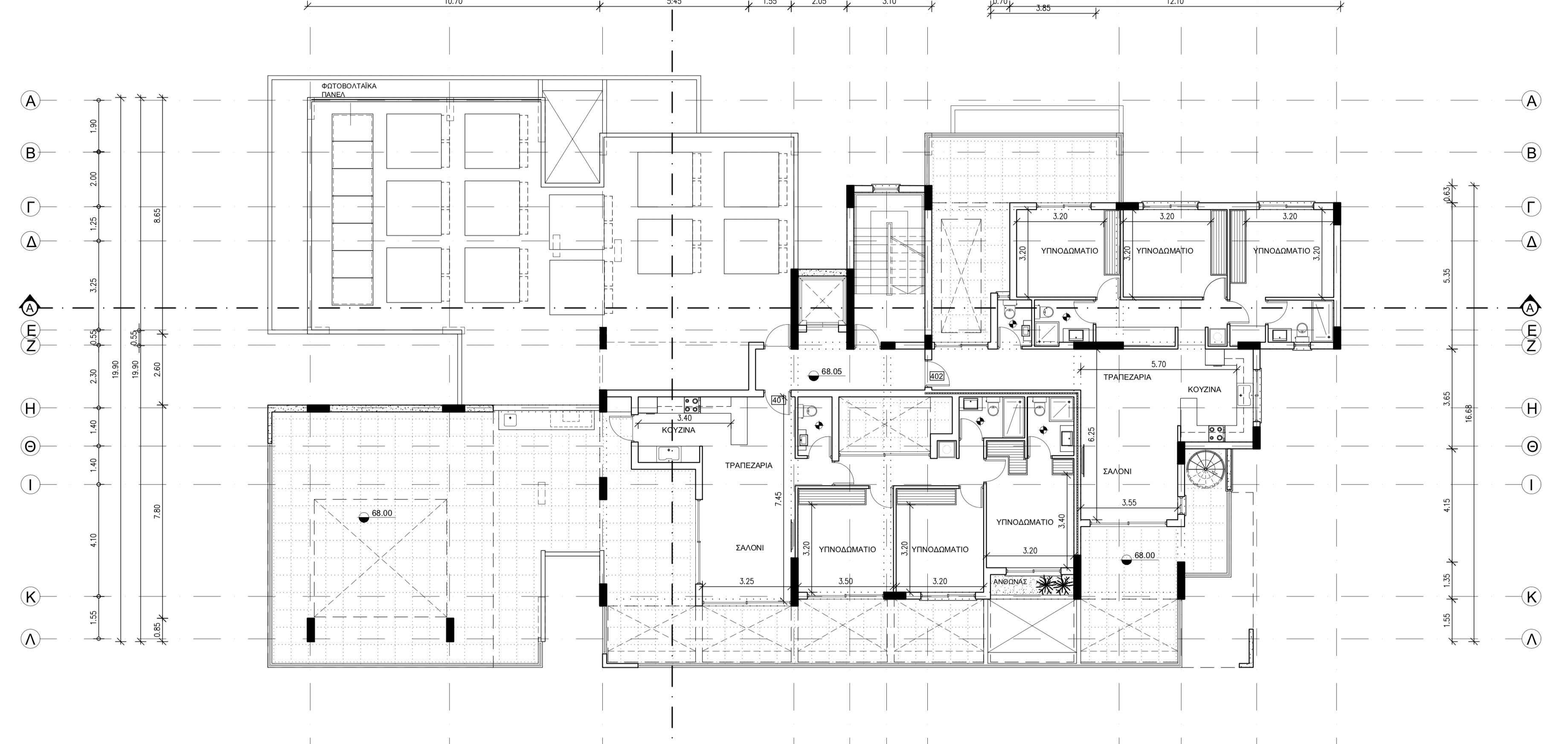
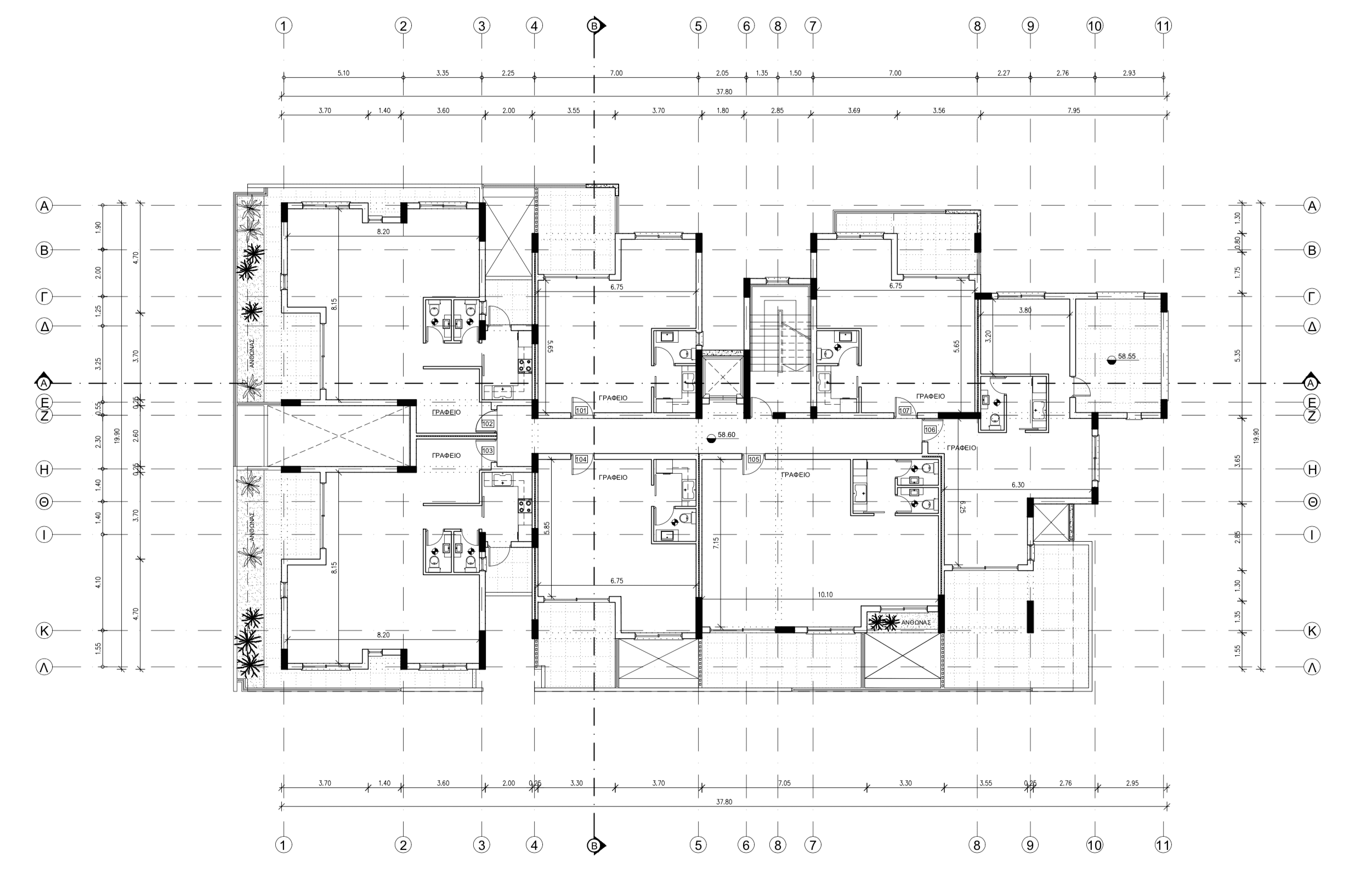
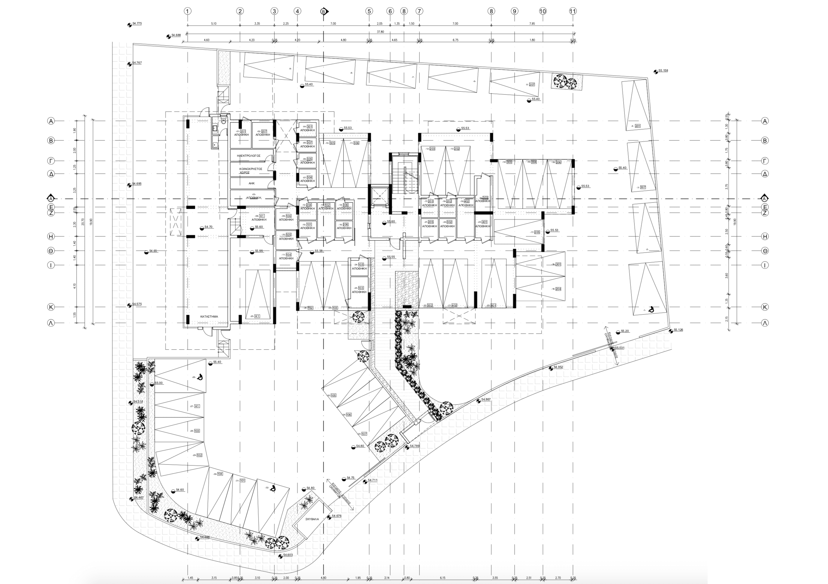
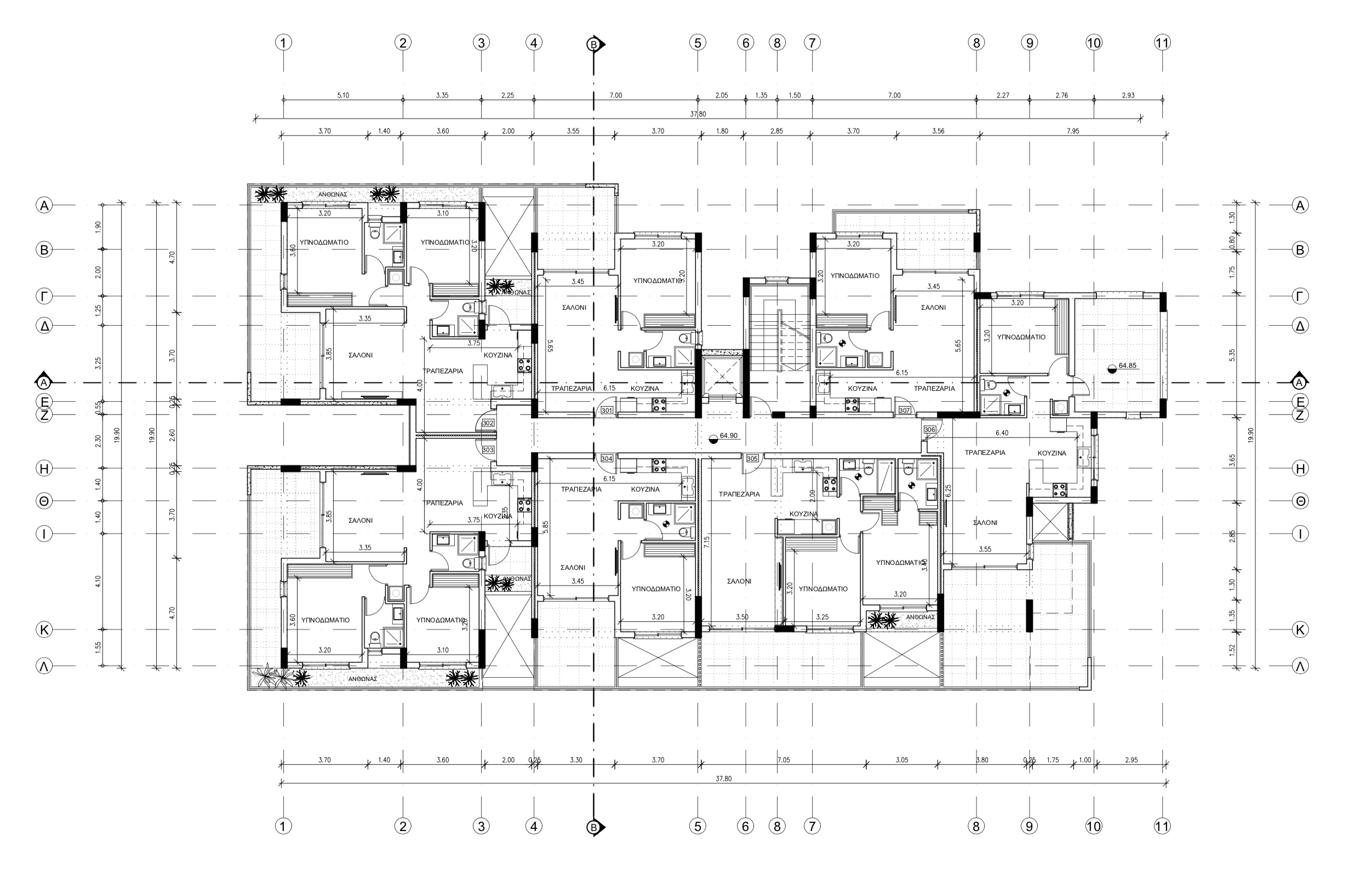
Πωλείται υπό ανέγερση γραφείο στα Κάτω Πολεμίδια – επαρχία Λεμεσού, με 76 τ.μ. καλυμμένο εσωτερικό χώρο και 18 τ.μ. καλυμμένη βεράντα στον 1ο όροφο τετραώροφης πολυκατοικίας. Διαθέτει φωτοβολταϊκό σύστημα, πρόνοια για συστήματα κλιματισμού, 2 χώρους υγιεινής, πιεστικό σύστημα νερού, αποθηκευτικό χώρο και 12 τ.μ. καλυμμένο χώρο στάθμευσης. Βρίσκεται σε πολύ ώραια και ήσυχη περιοχή, κοντα σε υπηρεσίες και απέχει μόλις 10 λεπτά από το κέντρο της Λεμεσού και τον αυτοκινητόδρομο. Aναμενόμενη ημερομηνία παράδοσης του έργου τον Μάρτιο 2024. Τιμή πώλησης 215,000 ευρώ πλέον Φ.Π.Α.
Owning a home is a keystone of wealth… both financial affluence and emotional security.
Suze OrmanTo provide the best experiences, we and our partners use technologies like cookies to store and/or access device information. Consenting to these technologies will allow us and our partners to process personal data such as browsing behavior or unique IDs on this site and show (non-) personalized ads. Not consenting or withdrawing consent, may adversely affect certain features and functions.
Click below to consent to the above or make granular choices. Your choices will be applied to this site only. You can change your settings at any time, including withdrawing your consent, by using the toggles on the Cookie Policy, or by clicking on the manage consent button at the bottom of the screen.