Paphos Municipality, Paphos District, Cyprus
Προς πώληση
€567,000
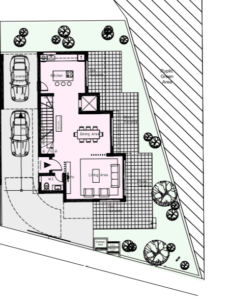
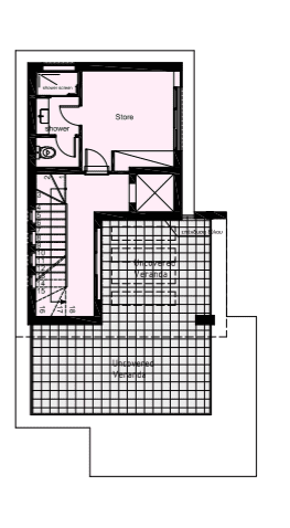
Πωλείται υπό ανέγερση μονοκατοικία τεσσάρων υπνοδωματίων στη περιοχή Universal της επαρχίας Πάφου. Αποτελείται από 217 τ.μ. καλυμμένο εσωτερικό χώρο, 27 τ.μ. καλυμμένη βεράντα, 73 τ.μ. ακάλυπτη βεράντα και 13 τ.μ. καλυμμένο χώρο στάθμευσης, χτισμένη σε 307 τ.μ. οικόπεδο, ενεργειακή απόδοσης Β+. Διαθέτει τέσσερις χώρους υγιεινής, en suite στο κυρίως υπνοδωμάτιο, αποθήκη και κήπο οροφής. Βρίσκεται σε καλή περιοχή κοντά στο εμπορικό κέντρο, στο Λιμάνι και κοντά σε ανέσεις, με θέα τη θάλασσα. Τιμή πώλησης 567,000 ευρώ πλέον ΦΠΑ.
Owning a home is a keystone of wealth… both financial affluence and emotional security.
Suze OrmanTo provide the best experiences, we and our partners use technologies like cookies to store and/or access device information. Consenting to these technologies will allow us and our partners to process personal data such as browsing behavior or unique IDs on this site and show (non-) personalized ads. Not consenting or withdrawing consent, may adversely affect certain features and functions.
Click below to consent to the above or make granular choices. Your choices will be applied to this site only. You can change your settings at any time, including withdrawing your consent, by using the toggles on the Cookie Policy, or by clicking on the manage consent button at the bottom of the screen.