Trachoni, Cyprus
Προς πώληση
€410,000
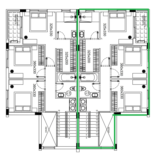
Πωλείται υπό ανέγερση μοντέρνα ημιανεξάρτητη οικία τριών υπνοδωματίων στην περιοχή Τραχώνι της επαρχίας Λεμεσού. Αποτελείται από 130 τ.μ. καλυμμένο εσωτερικό χώρο, και 21 τ.μ. πισίνα χτισμένη σε 275 τ.μ. οικόπεδο. Διαθέτει 3 χώρους υγιεινής εκ των οποίων en suite στο κυρίως υπνοδωμάτιο μαζί με γκαρνταρόμπα, πρόνοια για σύστημα κλιματισμού και θέρμανσης, πρόνοια για ηλεκτρικά ρολά, διπλά τζάμια στα παράθυρα, πιεστικό σύστημα νερού, ηλιακό θερμοσίφωνα, θυροτηλεόραση, αποθήκη, κήπο και 2 χώρους στάθμευσης. Η οικία διαθέτει πιστοποιητικό ενεργειακής απόδοσης Α και βρίσκεται σε πολύ καλή περιοχή μόλις λίγα λεπτά από το μεγαλύτερο εμπορικό κέντρο της πόλης, στην παραλία Lady’s Mile και στο City Of Dreams Mediterranean και σε άλλες υπηρεσίες και ανέσεις. Τιμή πώλησης 410,000 ευρώ, πλέον Φ.Π.Α
Owning a home is a keystone of wealth… both financial affluence and emotional security.
Suze OrmanTo provide the best experiences, we and our partners use technologies like cookies to store and/or access device information. Consenting to these technologies will allow us and our partners to process personal data such as browsing behavior or unique IDs on this site and show (non-) personalized ads. Not consenting or withdrawing consent, may adversely affect certain features and functions.
Click below to consent to the above or make granular choices. Your choices will be applied to this site only. You can change your settings at any time, including withdrawing your consent, by using the toggles on the Cookie Policy, or by clicking on the manage consent button at the bottom of the screen.