Parekklisia, Cyprus
Προς πώληση
€590,000
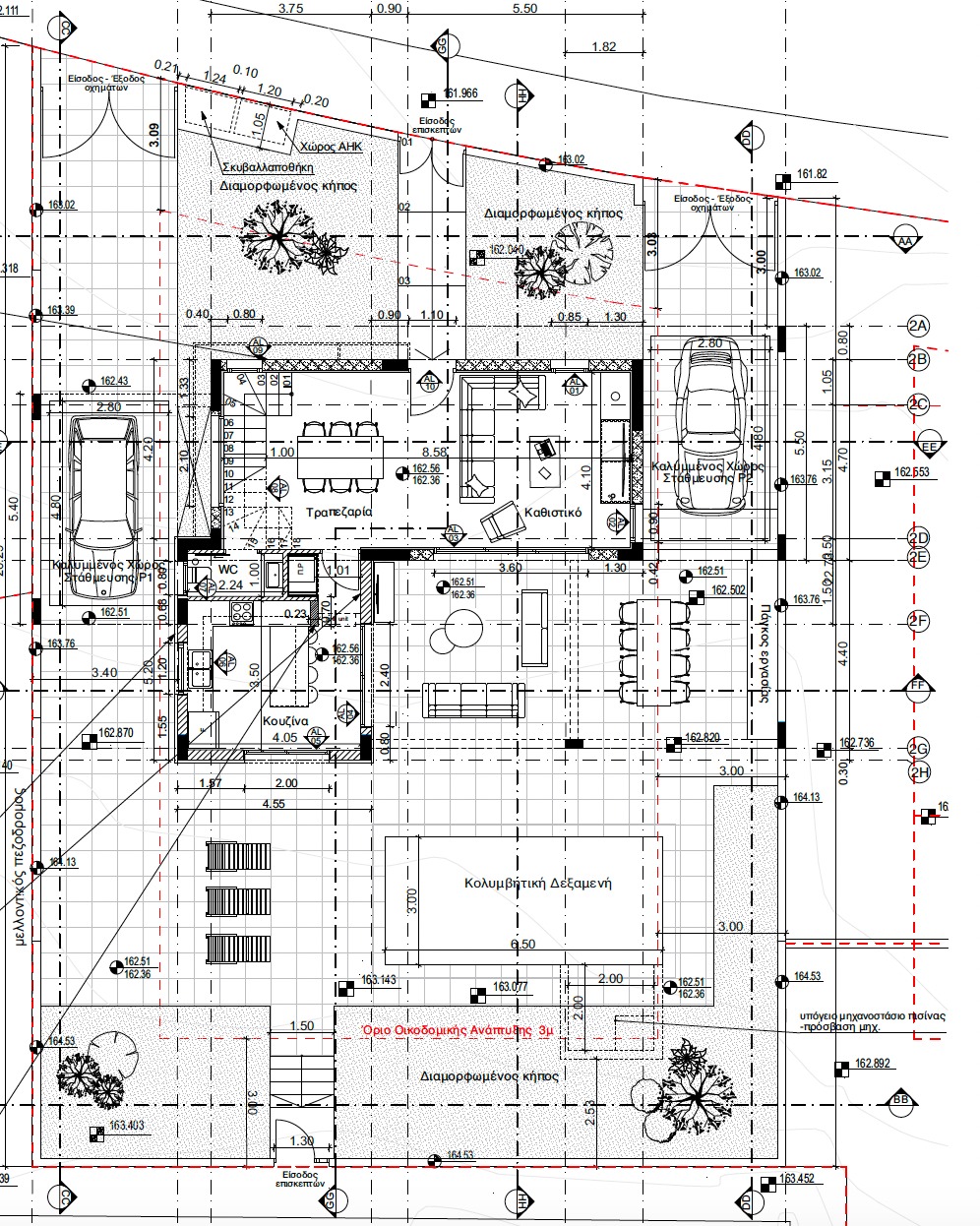
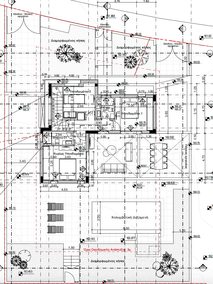
Πωλείται υπό ανέγερση μοντέρνα οικία τριών υπνοδωματίων στην περιοχή Παρεκκλησιά της επαρχίας Λεμεσού. Αποτελείται απο 129 τ.μ. καλυμμένους εσωτερικούς χώρους, 35 τ.μ. καλυμμένο χώρο στάθμευσης και 60 τ.μ. ακάλυπτη βεράντα χτισμένη σε 430 τ.μ. οικόπεδο. Διαθέτει στο ισόγειο μεγάλο καθιστικό, τραπεζαρία, κουζίνα και 1 τουαλέτα ξένων, στον 1ο όροφο 2 χώρους υγιεινής εκ των οποίων en suite στο κυρίως υπνοδωμάτιο, πρόνοια για σύστημα κλιματισμού και θέρμνασης σε όλους τους χώρους, διπλά τζάμια στα παράθυρα, πιεστικό σύστημα νερού, ηλιακό θερμοσίφωνα, φωτοβολταϊκό σύστημα, αποθήκη, κήπο και πισίνα 7×3,5 μέτρα. Η οικία διαθέτει πιστοποιητικό ενεργειακής απόδοσης Α και βρίσκεται σε καλή περιοχή κοντά σε υπηρεσίες και ανέσεις με ημερομηνία παράδοσης τέλη του 2025. Τιμή πώλησης 590,000 ευρώ, πλέον Φ.Π.Α.
Owning a home is a keystone of wealth… both financial affluence and emotional security.
Suze OrmanTo provide the best experiences, we and our partners use technologies like cookies to store and/or access device information. Consenting to these technologies will allow us and our partners to process personal data such as browsing behavior or unique IDs on this site and show (non-) personalized ads. Not consenting or withdrawing consent, may adversely affect certain features and functions.
Click below to consent to the above or make granular choices. Your choices will be applied to this site only. You can change your settings at any time, including withdrawing your consent, by using the toggles on the Cookie Policy, or by clicking on the manage consent button at the bottom of the screen.