Ayia Varvara, Nicosia District, South Cyprus, 2572, Cyprus
Προς πώληση
€245,000
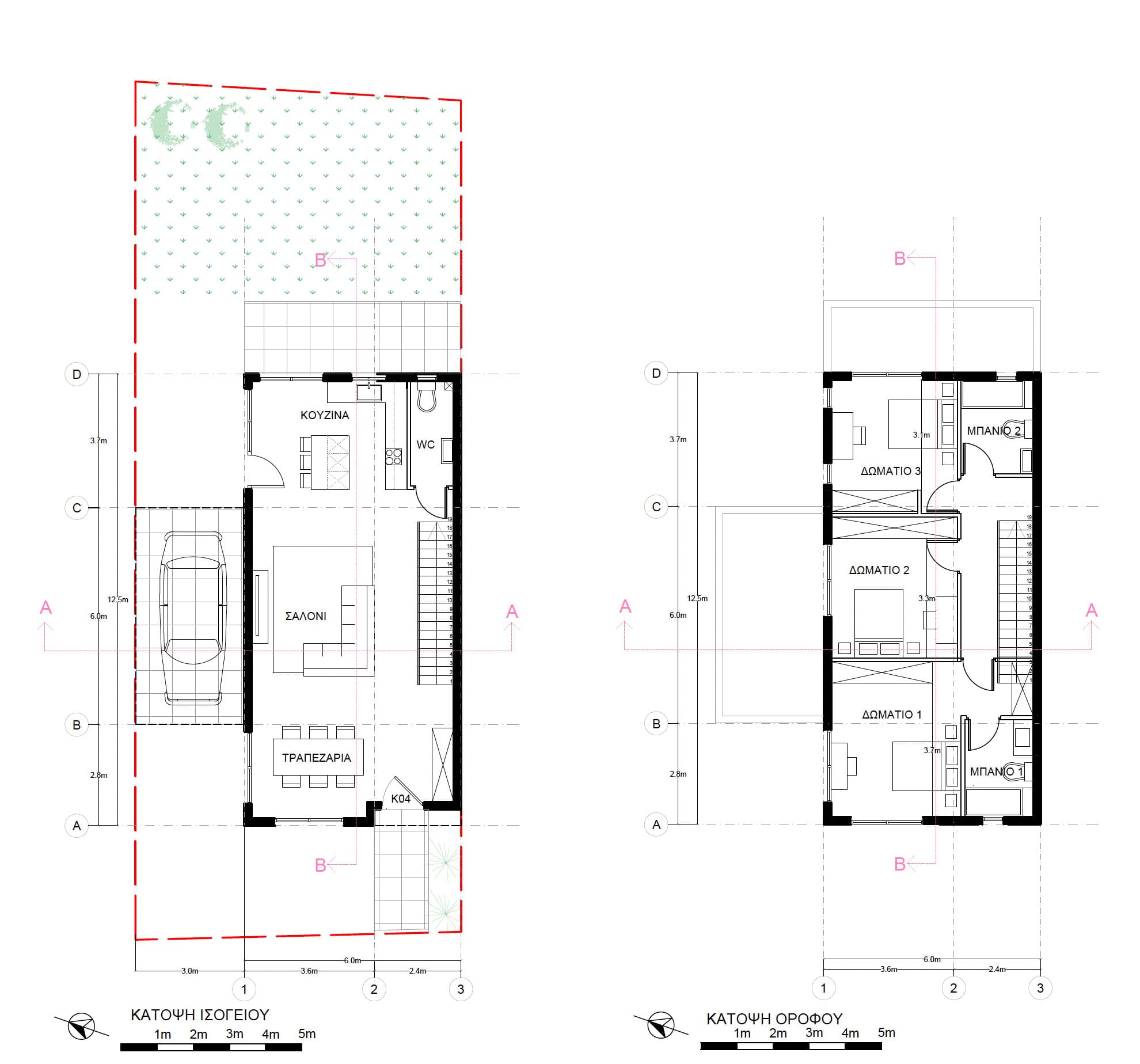
Πωλείται υπό ανέγερση πολυτελής ανεξάρτητη κατοικία τριών υπνοδωματίων στην Αγία Βαρβάρα – επαρχία Λευκωσίας, με 160 τ.μ. εσωτερικό χώρο, σε 260 τ.μ. οικόπεδο. Η οικία διαθέτει πρόνοια κεντρικής θέρμανσης και πρόνοια συστημάτων κλιματισμού, πλήρη εγκατάσταση συστήματος φωτοβολταϊκών απόδοσης 3KW, θυροτηλεόραση, en-suite στο κυρίως υπνοδωμάτιο, 1 κυρίως μπάνιο και τουαλέτα ξένων στο ισόγειο, καθώς και χώρο για πλυντήριο και στεγνωτήριο στον όροφο. Επίσης η οικία διαθέτει πιεστικό σύστημα νερού, αυλή με κήπο, αποθήκη και καλυμμένο χώρο στάθμευσης. Η οικία είναι Ενεργειακής Απόδοσης Α’ και βρίσκεται σε ωραία περιοχή δίπλα από μεγάλο χώρο πρασίνου. Τιμή πώλησης 245.000 ευρώ πλέον Φ.Π.Α.
Owning a home is a keystone of wealth… both financial affluence and emotional security.
Suze OrmanTo provide the best experiences, we and our partners use technologies like cookies to store and/or access device information. Consenting to these technologies will allow us and our partners to process personal data such as browsing behavior or unique IDs on this site and show (non-) personalized ads. Not consenting or withdrawing consent, may adversely affect certain features and functions.
Click below to consent to the above or make granular choices. Your choices will be applied to this site only. You can change your settings at any time, including withdrawing your consent, by using the toggles on the Cookie Policy, or by clicking on the manage consent button at the bottom of the screen.